HOWTON GROVE FARM
PROPOSED AGRICULTURAL WORKER'S DWELLING
DESIGN AND PLANNING DRAWINGS

THIS PRESENTATION SET ILLUSTRATES THE PROPOSED DESIGN FOR A NEW AGRICULTURAL WORKER'S DWELLING AT HOWTON GROVE FARM, INCLUDING THE ASSOCIATED PLANNING DRAWINGS AND SITE PROPOSALS.

1. Project Overview

1. PROJECT OVERVIEW

This document presents the proposed design for a new agricultural worker's dwelling at Howton Grove Farm, Wormbridge, Herefordshire. The proposal comprises a two-storey farmhouse style dwelling with associated access, parking, garage and landscaping. The design has been developed to provide a practical family home that responds to the functional requirements of the farm whilst sitting comfortably within the rural character of the surrounding landscape.

Project: Proposed agricultural worker's dwelling

Site location: Howton Grove Farm, Wormbridge, Herefordshire

Client: Dave and Hannah James

Description: Proposed two-storey agricultural dwelling with associated access, parking, garage / cart shed and landscaping

Planning application: Reserved matters submission

2. DESIGN CONCEPT

The proposed dwelling has been designed as a simple farmhouse form that reflects the traditional rural buildings found within the surrounding Herefordshire landscape. The design adopts a straightforward rectangular plan with a pitched roof and modest front porch, creating a house that feels appropriate to its agricultural setting. The internal layout separates the more private family spaces from the practical working areas of the house, including a farm office and boot / utility entrance, ensuring the dwelling responds to the operational needs of the farm. Living spaces are positioned to the rear of the house to take advantage of views across the surrounding countryside and to create a strong connection between the house and the garden. The overall scale, form and material palette aim to create a modest rural dwelling that integrates comfortably within the character of the farm and wider landscape.

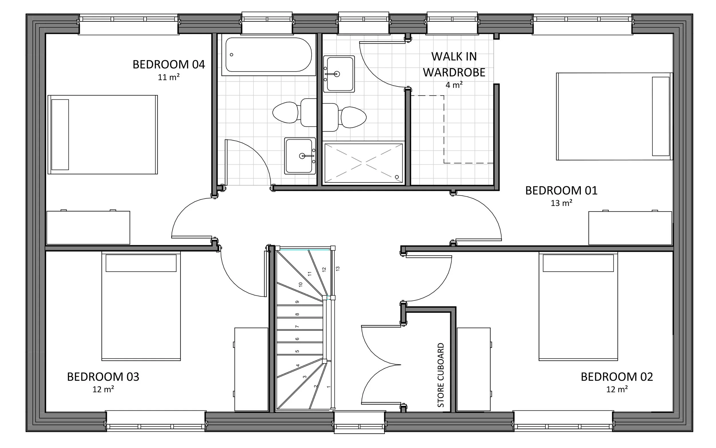
Proposed Floor Plans

Ground Floor Plan

First Floor Plan

Site Analysis

The site is located at Howton Grove Farm near Wormbridge, Herefordshire, positioned within open agricultural fields and associated farm buildings. The proposed dwelling sits within an existing farmholding and is accessed via the existing farm access from the A465. The surrounding landscape is characterised by open farmland, hedgerows and scattered trees, which form the defining rural context for the proposal. Existing hedgerows are retained and reinforced with new native tree planting and orchard planting, helping integrate the dwelling into the landscape. The proposed domestic garden area is modest and clearly defined, maintaining the agricultural character of the wider site.



Architectural Design and Layout

The dwelling is designed as a simple two-storey farmhouse form, reflecting the traditional rural buildings typical of the Herefordshire landscape. The design adopts a rectangular plan with pitched roof and modest timber porch, with a subordinate garage / cart shed element positioned to the side of the house. Internally, the layout provides a clear separation between practical working spaces and family living areas, including a farm office and utility / boot room accessed from the rear. The ground floor centres around a large open kitchen, dining and living space, while a separate snug provides a quieter living room. The first floor accommodates four bedrooms including a master bedroom with walk-in wardrobe and ensuite, providing a practical family dwelling linked to the farm.


Planning Considerations

The proposal follows the principle of a modest agricultural worker’s dwelling located within the existing farmholding. The design responds to the rural setting through a simple building form, traditional materials and restrained scale. The house is positioned to maintain a functional relationship with the surrounding farm buildings while ensuring the domestic garden area remains limited in size. Landscaping proposals include native tree planting, orchard planting and retention of existing hedgerows, helping integrate the development into the surrounding landscape. The proposal has been developed to satisfy the reserved matters submission, addressing layout, scale, appearance and landscaping.

Construction Costs

The design has been developed with a focus on simplicity and build efficiency, using a straightforward rectangular form, pitched roof structure and conventional construction materials. The dwelling provides approximately 180 m² of internal floor area, with around 100 m² at ground floor level and 80 m² at first floor level. This compact farmhouse layout helps maintain an efficient build while delivering the accommodation required by the clients. The proposed materials, including brick plinth, render walls and slate roof, reflect local building character while remaining practical for construction.



Conclusion

The proposed dwelling provides a practical and modest agricultural home that responds to the operational needs of Howton Grove Farm. The design takes inspiration from traditional rural buildings while providing a comfortable modern family dwelling. Through a simple architectural form, appropriate materials and carefully considered landscape proposals, the development integrates sensitively into the surrounding countryside. The proposal therefore represents an appropriate and well-considered solution for a new agricultural worker’s dwelling within the farmholding.

Drawings